Skip to content
Stelys / Product specifications

Product sheets with the same Stelys discipline.

The same architectural-industrial language carries through here, with tighter data, clearer utilities, and faster scanning for architects, contractors, and facilities teams.

Quick access

Move between both model sheets, the comparison matrix, and the PT-1359 engineering section without breaking the spec flow.

Source assets

Live source material for the S1 wall sheet. Rough-in, service, and bottle-filler detail stay inside the same dossier while the broader contractor library is being standardized.

Models
S1 Wall / S2 Floor
Material stance
SS304 and stainless housings
Use case
Commercial refill traffic
Quote path
Specs first, then site conditions
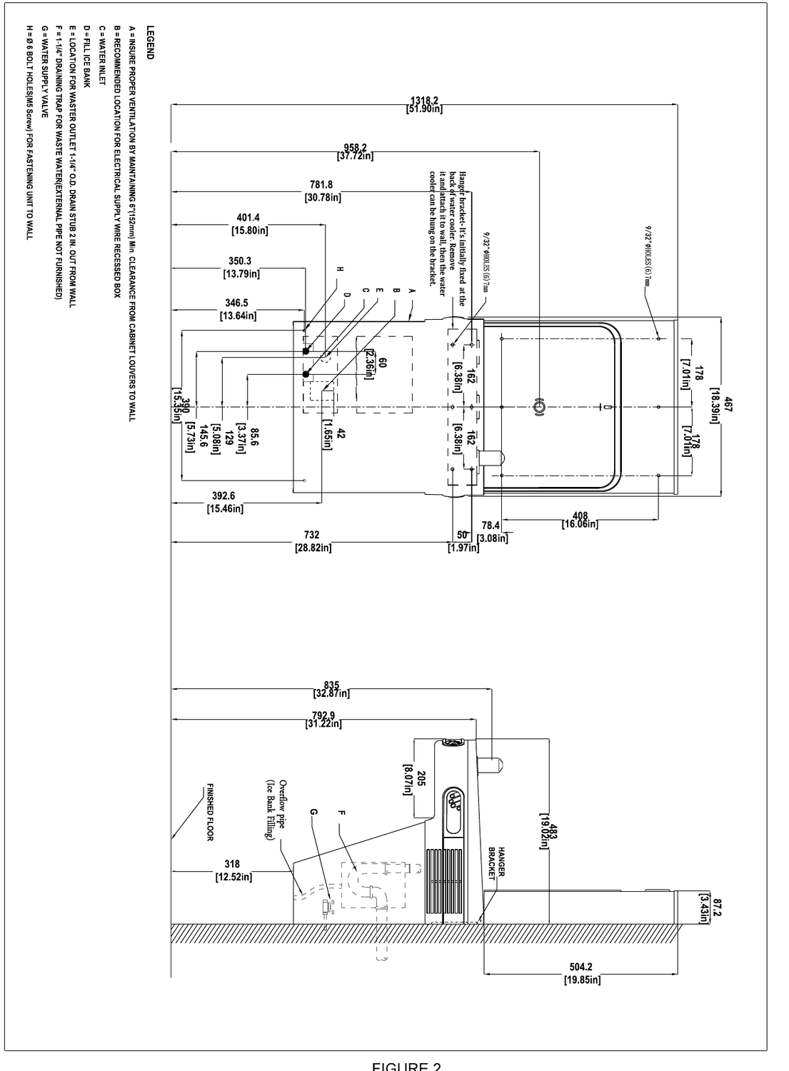
01 / Product sheetPT-1359 / WALL

Stelys S1 Wall

Wall-mounted cooler and bottle filler in one ADA-oriented footprint, with the fuller published construction callouts.

Site price
CA$1,999
Best fit
Schools, gyms, public corridors, and retrofit wall installs.
Finish
Silver gray / black titanium
Stelys S1 Wall stainless commercial bottle filling station
Cold output
30 L/hr at 6–8 °C
Ambient output
200 L/hr
Material
SS304 shell, cover, and tank
Activation
Touchless bottle fill + 4 push pads
Configuration
MountingWall mounted
Product size470 × 480 × 999 mm
Packing size500 × 500 × 1050 mm
Ambient range5–38 °C
Wall thickness1.0 / 0.8 / 1.2 mm
Utilities
Voltage110V / 220V · 50/60 Hz
Rated draw800 W
Feed pressure0.1–0.35 MPa
Water sourceResidential tap water
Feed TDS500 ppm typical, 2000 ppm max
Performance
Cold tank3 L ice tank
Cold output30 L/hr at 6–8 °C
Normal output200 L/hr
Cooling systemIce tank and coil
RefrigerantR-134a
CertificationsCE · CCC · CQC
Installation reality
Wall condition

Needs a finished wall or backing condition that can support the unit and future service access.

Utilities at wall

Cold water, drain, and 110V/220V service should land in the wall zone before finish work closes it in.

Best install fit

Strong choice for schools, gyms, corridors, and retrofit sites where a wall-fed station keeps circulation clean.

Procurement note

Custom logo-label printing is available on larger runs. Final ADA compliance depends on mounting height, clearances, and site conditions.

02 / Product sheetPT-1358 / FLOOR

Stelys S2 Floor

Embedded floor-standing format with narrower width, force cooling, integrated filtration language, and a simplified hardware set.

Site price
CA$2,199
Best fit
Open-plan interiors, gyms, and sites where a wall mount will not work.
Finish
Stainless steel housing
Stelys S2 Floor freestanding commercial bottle filling station
Cold output
30 L/hr at 8–12 °C
Width
210 mm narrow body
Cooling
200 W force-cooling system
Activation
One sensor faucet
Configuration
FormatEmbedded floor version
Product size210 × 504 × 1169 mm
Packing size250 × 560 × 1200 mm
Weight24.5 kg net · 27 kg gross
HousingStainless steel
Utilities
Voltage220–240V / 50Hz or 110V / 60Hz
Cooling power200 W
Water pressure0.07–0.5 MPa
Water sourceCity tap water
Included devicePressure-reducing valve
Performance
Cold tank3 L
Cooling capacity30 L/hr at 8–12 °C @ 25 °C ambient
ActivationOne sensor faucet
CompressorHermetic Danfu compressor
FiltrationReferenced by sheet; media and capacity not listed
Installation reality
Floor planning

The narrow body still needs slab or floor coordination, clear service access, and a clean drain path.

Utilities at site

City water, power, and the included pressure-reducing valve need to align before the floor finish locks the location.

Best install fit

Useful for open-plan interiors, fitness spaces, and sites where a wall-mount location is unavailable or undesirable.

Procurement note

The S2 sheet references filtration without listing media, certification, or capacity; the published numeric specs stay separated from install assumptions.

Model comparison

One matrix for the first specification pass.

Before PO

What we confirm

Model fit, current timing, and the rough-in questions still open before the job turns into a site problem.

Site dependent

What stays conditional

ADA outcome, mounting height, final clearances, water quality, and local code remain installation questions.

Quote path

How to use this page

Pick the model, verify utilities and pressure, then send quantities and notes so the quote comes back cleaner.

CriteriaStelys S1 WallStelys S2 Floor
FormatWall cooler + bottle fillerEmbedded floor unit
Site priceCA$1,999CA$2,199
Product size470 × 480 × 999 mm210 × 504 × 1169 mm
Cold output30 L/hr at 6–8 °C30 L/hr at 8–12 °C
Pressure0.1–0.35 MPa0.07–0.5 MPa
Power800 W200 W cooling
Water sourceResidential tap waterCity tap water
ActivationTouchless fill + 4 push padsOne sensor faucet
CertificationsCE · CCC · CQCNot listed on source sheet

Specs are derived from OEM sheets PT-1359 and PT-1358. Site conditions, local code, final mounting heights, water quality, and clearances still govern the finished installation.